Регулировка света фар (Эскорт 4)

            0

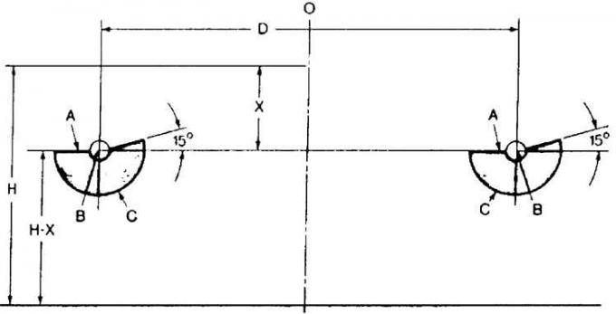
Схема регулировки фар



А – граница света; В – центр светового потока; С – зона освещения ближним светом; D – межосевое…

А – граница света; В – центр светового потока; С – зона освещения ближним светом; D – межосевое расстояние фар; Н – высота установки фар; О – ось автомобиля; X = 130 мм для седана, универсала и автофургона; X = 110 мм для XR3


Винты регулировки света фар в автомобилях, изготовленных до 1985 года



1 – регулировка света фар по вертикали (вверх-вниз);

1 – регулировка света фар по вертикали (вверх-вниз);
2 – регулировка света фар по горизонтали (влево-вправо)


Винты регулировки света фар в автомобилях, изготовленных с 1986 года



1 – регулировка света фар по вертикали (вверх-вниз);

1 – регулировка света фар по вертикали (вверх-вниз);
2 – регулировка света фар по горизонтали (влево-вправо)




При регулировке фар должны выполниться следующие условия:
  • давление в шинах должно быть в пределах нормы;
  • в автомобиле должен находиться только один человек на середине заднего сидения;
  • топливный бак должен быть полным.

Регулировка света фар производится при включенном ближнем свете в темное время суток.

Установить автомобиль на ровную горизонтальную поверхность напротив вертикальной стены или экрана на расстоянии 10 метров и произвести регулировку света фар в соответствии с рис. Схема регулировки фар.






Ссылка на эту страницу в разных форматах


Комментарии посетителей

Еще нет комментариев



Эскорт 5 
Эскорт 4 
Эскорт 3 

Анекдот про автомобили
покажите следующий
Мы применяем куки, чтобы сайт работал стабильно, запоминал настройки и был удобен для вас 🍪